FENIX Architects by Evgeni Medarov

Expert Architectural Solutions !
Over 8 years of experience
delivering bespoke designs
and expert guidance

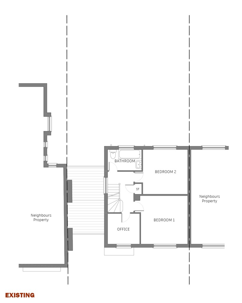
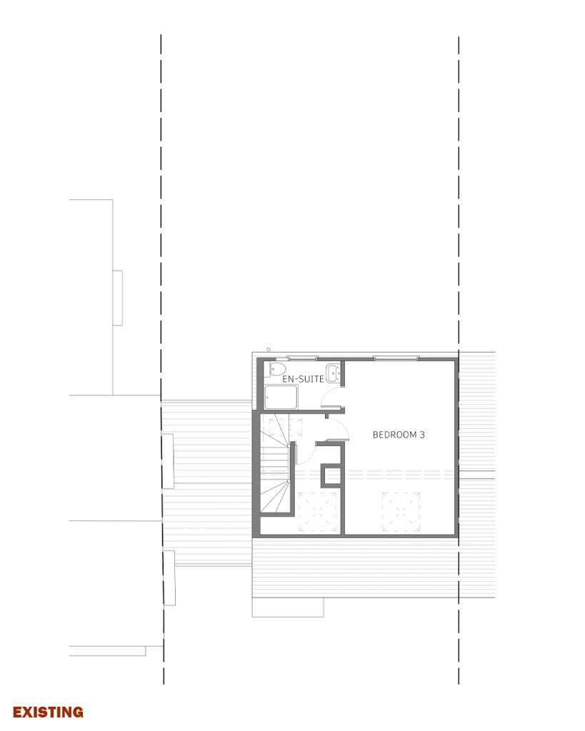
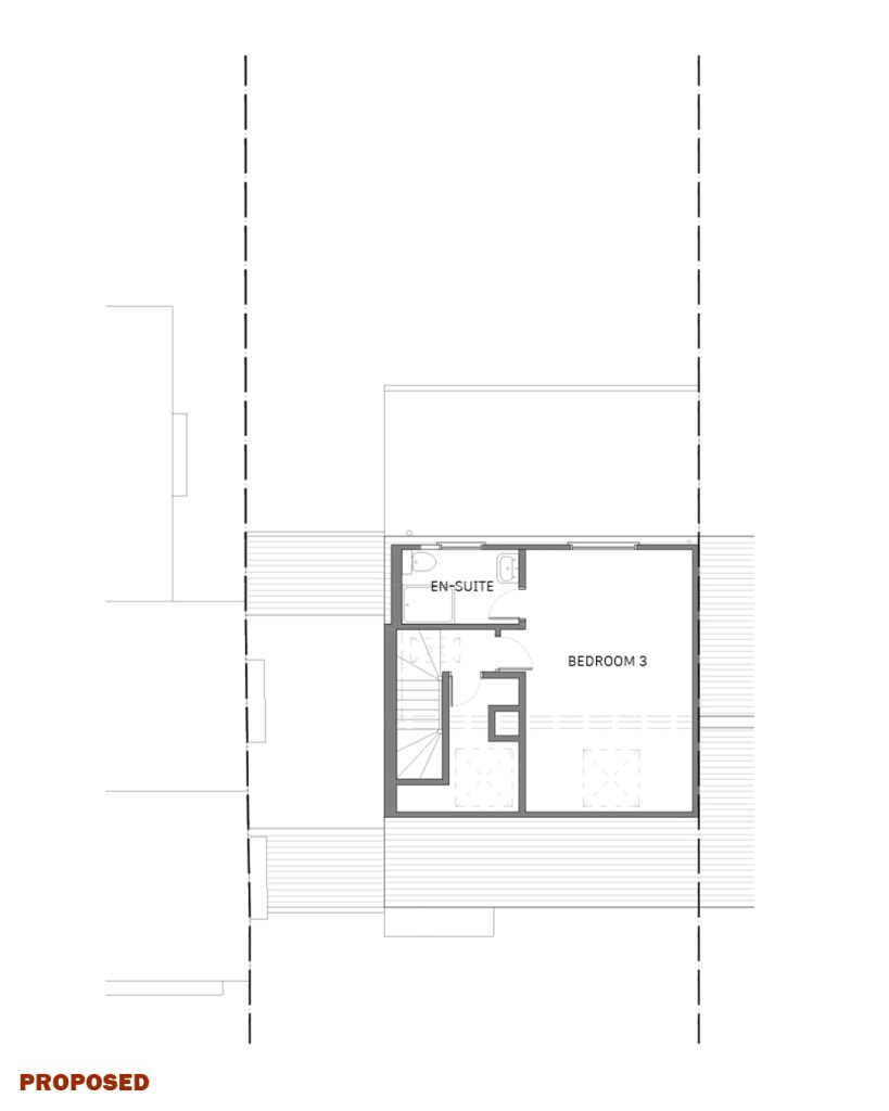
Thorparch Road, London

Residential

Year: 2025 Value: 1m

Family Bathroom, London

Residential, Interiors

Year: 2025 Value: 15k